Description
Accommodation
Features
- Bio Cycle unit
- Well Water
- Turn-Key condition
- Gas Fired central heating
- New boiler
- Less than 20 minutes from Cork city and less than 15 minutes from Mallow town.
BER Details
Negotiator
Show more...








































| Beds | 6 beds |
| Price | Sale Agreed |
| Property Type | Detached House |
| Size | 218 meters2 |
| Energy Rating | BER-C1 |
| Refreshed on | Oct 3, 2025 |
| Eircode | T34 H272 |
| Group Name | Sherry FitzGerald O'Donovan Mallow |
| Sales License Number | 003457 |
Description
This absolutely stunning home truly needs to be seen to be fully appreciated. From the moment you step inside, the exceptional quality of the finishes and the owners' impeccable eye for interiors are immediately evident. Every detail has been carefully considered, from the bespoke high skirting boards sourced from a Belfast mill, to the solid wood herringbone flooring imported from London, brass light switches and the striking double marble worktops in the kitchen. Extending to just under 2,400 sq. ft., the accommodation is both spacious and versatile. The ground floor boasts two elegant reception rooms, a bright sunroom, a stylish kitchen/dining with utility room, three bedrooms (one en suite), and a beautifully finished main bathroom. Upstairs, there are three further generously sized double bedrooms, complemented by a luxurious bathroom featuring a stand-alone bath and his-and-hers sinks. Outside, the large landscaped rear garden offers stunning views of the surrounding countryside with a patio area providing a perfect setting for both relaxation and entertaining. The location is ideal—just 7 minutes from Carrignavar village, under 5 minutes to the N20 Cork/Limerick road, less then 15 minutes to Mallow and less than 20 minutes to Cork City. School buses for both primary and secondary schools pass directly by the house, making it an excellent choice for families. This property offers the perfect balance of rural living with city convenience. Viewing is highly recommended to fully appreciate all that this exceptional home has to offer.
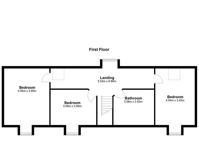
Accommodation
Entrance Hall - 4.2m x 10.7m Solid wood Herring bone flooring. Recessed lighting. Cornicing to ceiling. Sitting Room - 3.17m x 4.08m Solid wood Herring bone flooring. Feature marble Fireplace with stove insert. Cornicing to ceiling. Kitchen Dining Room - 3.04m x 6.98m Polished Porcelain tiled flooring. Fully Fitted solid wood Kitchen with double marble worktops. Range with feature surround. Recessed lighting. Double doors to Sun Room. Sun Roon. - 3.3m x 3.3m Polished Porcelain tiled Flooring. Door to rear. Utility Room - 3.04m x 1.82m Polished porcelain tiled flooring. Fully Fitted units. Plumbed for washing machine and Dryer. Door to rear. Living Room - 4.2m x 3.3m Solid wood Herring Bone flooring. Cornicing to ceiling. Feature cast iron fireplace. Bedroom 1 - 3.17m x 3.64m Laminate Flooring. Bathroom - 3.04m x 1.82m Fully Tiled. Whb with vanity. Bath and Toilet. Bedroom 2 - 3.17m x 3.37m Laminate Flooring. Fitted Robes. Bedroom 3 - 4.07m x 4.08m Laminate Flooring. Fitted Robes. Feature panelling to wall. En-Suite - 3.04m x1.3m Fully Tiled. Whb with vanity. Toilet and Shower. Heated towel rail. Landing - 5.53m x 8.88m Laminate Herringbone Flooring. Bedroom 4 - 4.94m x 3.45m Carpet. Dual aspect. Fitted Robes. Bedroom 5 - 3.08m x 3.99m Carpet. Recessed Lighting. Bedroom 6 - 4.94m x 3.95m Carpet. Recessed Lighting. Bathroom - 3.08m x 3.55m Tiled Flooring. Pannelling on wall. Feature stand alone Bath. His/Hers sink. Toilet. Recessed Lighting.
Features
BER Details
BER: C1 BER No: 118806751 Energy Performance Indicator: 162.63
Negotiator
Jayne Sheehan

Central Heating
Date created: Oct 3, 2025
View this search in machine-readable form:
Download JSON feed of this listing