Description
Features
Negotiator
Show more...

































| Beds | 4 beds |
| Price | Sale Agreed |
| Property Type | Detached House |
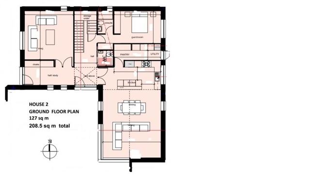
| Size | 208.5 meters2 |
| Energy Rating | BER- |
| Refreshed on | Nov 12, 2025 |
| Eircode | A84CT93 |
| Group Name | Grimes (Ashbourne) |
| Sales License Number | 001417 |
Description
Hickeys Cove is a boutique gated development featuring just 4 bespoke large, A-rated detached homes, each situated on a generous site. 1 property remains available for Sale situated in a quiet enclave off Hickeys Lane which is a prestigious, sought after address on the south side fringe of Ashbourne town - rarely do such opportunities arise with the convenience of a myriad of amenities on its doorstep. We currently have 2 Hickeys Cove Available reflecting 208.5sq m and a site of approximately 0.30acres. ** Images refer to another house within scheme, slightly larger with similar finishes available ** These luxurious homes offer a two house types of 208.5 sq m and 222.5 sq m with considered layouts making them an ideal family home or indeed for any all stages of living. With effective spatial planning and high internal specification throughout these homes offer block built high quality homes of exceptional construction, insulation and finishes with outstanding living bedroom accommodation, stylish bathrooms, ensuites and state of the art kitchens. Showcasing well proportioned living spaces. The open plan kitchen dining and living space creates a seamless and spacious environment, perfect for both casual family meals and entertaining guests. A separate living room provides a cozy retreat, offering an ideal space to unwind and relax. The master bedroom is complemented by an ensuite and walk in wardrobe space, adding a touch of luxury to daily living. This thoughtfully designed home harmonizes modern functionality with a comfortable and welcoming atmosphere, making it an ideal home for the discerning buyer. These stunning and elegant homes are currently under construction and anticipated completions from December 2025 to January 2026. Site sizes vary from approx 0.34 acres to 0.39 acres.*NOTE Images and floor plans provided are for reference only and finishes can vary subject to signing of contract* Superbly located on the fringe of Ashbourne town an abundance of amenities including shops, bars, restaurants, schools, crches, gyms`, parks and sporting facilities. Well serviced by public transport with the Ashbourne Connect Bus Eireann bus stop is just 2 minutes stroll from your doorstep linking both Dublin City Centre Dublin Airport. A short drive to the N2, M50 Motorways Dublin International Airport. 10 Year Homebond Guarantee. VIEWING IS STRICTLY BY APPOINTMENT WITH GRIMES - ACCESS TO SITE IS NOT PERMITTED UNACCOMPANIED Directions Situated just off the R125 Ratoath Road close to the nine mile stone roundabout in the townland of Baltrasna. Nearest Eircode - Opposite subject property on Hickeys Lane - A84 CT93 what3words /// eclipses.bleeps.outdone Notice Please note we have not tested any apparatus, fixtures, fittings, or services. Interested parties must undertake their own investigation into the working order of these items. All measurements are approximate and photographs provided for guidance only.
Features
Air to Water Heating System, Triple Glazing offering an A rated home Services incl: Bio Cycle within own site boundary 1m fencing and Well water Fully Fitted kitchen and island with Quartz countertop and upstands and fitted utility room Partly Tiled bathrooms & Ensuites with contemporary neutral tones Internally 2.7m ceiling height with featured vaulted ceiling to kitchen & living space Modern internal fittings and finished throughout with underfloor heating at ground floor Generous electrical specification throughout with ducting for EV charge and high speed broadband Gardens are levelled and seeded, external lighting and tarmac driveways set behind private gates Optional extras available of patio and flooring Guide Price €975,000
Negotiator
Siobhan O`Sullivan
Broadband
Date created: Nov 12, 2025
View this search in machine-readable form:
Download JSON feed of this listing